Phối cảnh phòng khách

Thông tin về dự án

– Chủ đầu tư: Anh Dũng
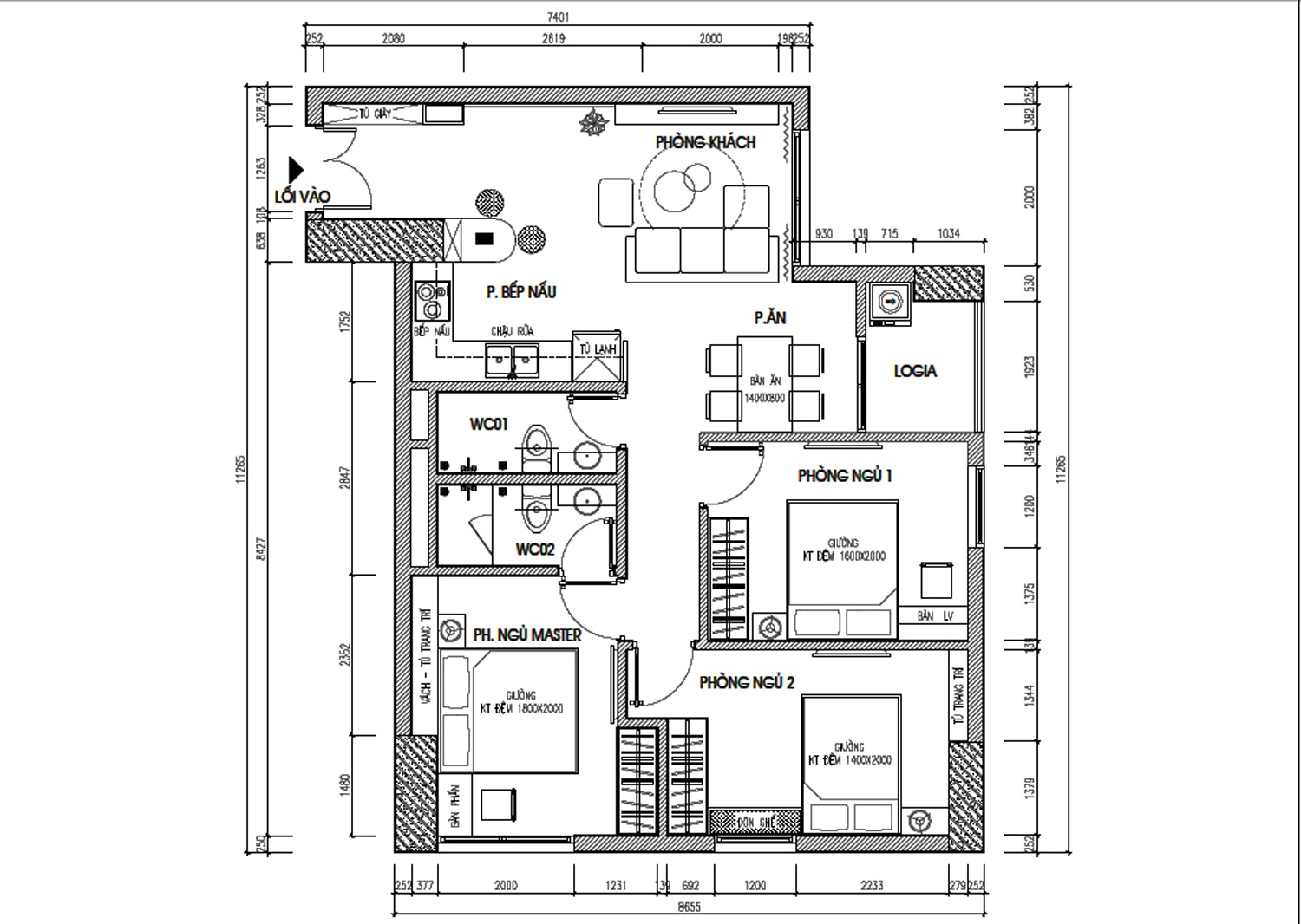
– Diện tích căn hộ: 81m2 thông thủy
– Cơ cấu căn hộ: 3 phòng ngủ, 1 ban công, 2WC, 1 phòng khách + ăn
– Phong cách thiết kế: Thiết kế theo phong cách hiện đại với tong màu trầm chủ đạo
– Chi phí: 200 triệu
– Khối lượng thiết kế: Phòng khách, bếp và 3PN, ban công
– Hạng mục: Tủ bếp, bếp từ, gỗ An Cường, bàn, ghế, sofa, chi tiết tranh trí, rèm..,
CÔNG TY CP ĐẦU TƯ KIẾN TRÚC VÀ XÂY DỰNG THE SAILS
Địa chỉ: P 2405, Tòa E, Mulberry Lane, Hà Đông, HN
☎ Hotline: 0869 671 888 – 0918 141 678 (hoặc Zalo)
Mặt bằng bố trí căn hộ

Chi tiết thiết kế

Phối cảnh khu vực phòng khách

Khu vực bếp và bàn ăn

Tủ giày

Phòng ngủ Master

Phòng ngủ con trai

Phòng ngủ nhỏ thứ 2

CÔNG TY CP ĐẦU TƯ KIẾN TRÚC VÀ XÂY DỰNG THE SAILS
Địa chỉ: P 2405, Tòa E, Mulberry Lane, Hà Đông, HN
☎ Hotline: 0869 671 888 – 0918 141 678 (hoặc Zalo)

Phối cảnh phòng khách Thông tin về dự án – Chủ đầu tư: Anh Dũng – Diện tích căn hộ: 81m2 thông thủy – Cơ cấu căn hộ: 3 phòng ngủ, 1 ban công, 2WC, 1 phòng khách + ăn – Phong cách thiết kế: Thiết kế theo phong cách hiện đại với tong màu […]